
sonderbau

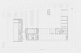
Die Stadt Dülmen plant gemeinsam mit dem Kreis Coesfeld den Neubau einer modernen Feuer- und Rettungswache – ein zukunftsweisendes Projekt zur Stärkung des Brandschutzes und Rettungsdienstes in der Region. Als neuer Standort wurde nach eingehender Prüfung ein ca. 18.000 m² großes Grundstück an der Kreuzung Nordlandwehr / An der Lehmkuhle ausgewählt. Das Grundstück liegt verkehrsgünstig am Stadtrand und wird über die Landesstraße L 580 erschlossen.
Geplant ist ein Neubau mit rund 5.000 m² Nutzfläche für die Nutzung durch die hauptamtliche und freiwillige Feuerwehr. Zusätzlich soll auf dem Gelände eine neue Rettungswache des Kreises Coesfeld mit etwa 1.400 m² Nutzfläche entstehen.
Zur Entwicklung einer funktionalen und architektonisch hochwertigen Lösung wurde im Jahr 2023 ein hochbaulicher Realisierungswettbewerb mit vorgeschaltetem Bewerbungsverfahren ausgelobt – Auslober war die Stadt Dülmen. Insgesamt wurden 18 Architekturbüros zur Teilnahme eingeladen. Die Wettbewerbsteilnahme erfolgte in einer Arbeitsgemeinschaft mit habermann.decker.architekten aus Lemgo – und wurde mit dem 1. Preis ausgezeichnet.
Zeichnungen



